SKY DUO PARK VILLAGE T棟 47階

21,800万円

東京都中央区晴海5丁目6-7

都営大江戸線「勝どき」駅徒歩15分

価格
21,800万円
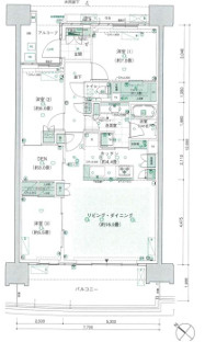
間取り
2LDK
向き
所在地
東京都中央区晴海5丁目6-7
交通

都営大江戸線勝どき」駅 徒歩15分

専有面積
71.01㎡
築年月
2025年10月(新築)

物件の特徴

  • バストイレ別

  • 室内洗濯機置場

  • TVモニタ付きインターホン

  • カウンターキッチン

  • 浴室乾燥機

  • オートロック

  • エレベーター

セールスポイント

47階、東向きの眺望・採光の良い71.01㎡の住戸です。豊洲方向に眺望が開け、オーシャンビューが広がり開放感があります。
分譲時に2LDKの間取りを選択していますが、3LDKへの間取り変更も可能です。(別途費用あり)新築未入居ですので、キッチンやバスルームを含めご利用はございません。空室につき、お客様のご都合に合わせてご内覧可能ですので、ご希望の際はお気軽にお申し付けくださいませ。

担当者のコメント

谷貝 亮

晴海フラッグは官民一体となって開発された東京都心に位置する新たな街です。三方を海に囲まれ、東京に住みながら、東京にいることを忘れてしまうアーバンリゾートライフを堪能できます。
晴海フラッグ内には商業施設、公園、学校、保育施設と多世代、多様な方々にとって便利な施設が揃います。
新たな交通機能として期待される東京BRT(バス高速輸送システム)、虎ノ門までダイレクトアクセス可能な環状二号線も整備され、東京駅まで約3.2km、銀座や新橋へも2.5kmと通勤やお買い物にも便利なロケーションです。
また、駐車場や電線網は地下化され、歩道・自転車・車道が分離された安全性を兼ね備えた次世代の街で、空地率約50.3%の開放感が確保されたランドスケープには公園の他、3,900本にも及ぶ四季折々の中高木が街のいたるところに植樹され、森の中に住まうような安らぎを与えます。

【PARK VILLAGE 共用施設】
・BOAD ROOM(A棟一階):多目的に利用可能なミーティングルームです。
・PARTY ROOM TERRACE(B棟14階):キッチン付きのパーティールームで貸切利用も可能です。
・PARTY ROOM GARDEN(A棟1階):カフェのような居心地の良いパーティールームです。
・RELAX LABO(B棟1階):マッサージチェアやソファを設えたラウンジです。
・IYASHI SUITE(B棟1階):空や木々、風等の自然を感じることができるゲストルームです。
・LIBRARY LOUNGE(C棟1階):二層吹き抜けの解放感のあるラウンジスペースです。
・FLAG CORE(C棟1階):居住者や街を訪れる方のに向けた情報発信を行うスペースです。ソファやテーブルスペースも設けられています。
・KODOMO PLAZA(C棟1階):雨の日でも子供が走り回れるアクティブなキッズスペースです。
・LEGACY SUITE(C棟2階):ご家族で寛げるゲストルームです。
・ASHIYU LOUNGE(D棟1階):水素エネルギーの熱を活用した足湯が愉しめるラウンジです。
・WORK LABO(E棟1階):Wi-Fiやコンセント等を完備したワークスペースです。
・STUDY LABO(E棟1階):勉強や仕事に集中できる個室タイプのワークスペースです。
・THEATER ROOM(F棟B1階):プロジェクター付きのシアタールームです。
・KONAKA SUITE(F棟1階):和テイストの落ち着いた空間のゲストルームです。
・PARTY ROOM FOREST(F棟1階):暖炉のあるパーティールームです。
・SORA TERRACE(F棟14階):レインボーブリッジや東京湾を一望できるテラスです。
・VIEW LOUNGE(F棟14階):SORA TERRACEに併設されたラウンジです。
・PARENTS SALON(T棟2階):海原をイメージしたキッズルーム
・PARTY ROOM SAFARI 63(T棟2階):浜辺のサファリを思わせるパーティールーム
・SKY LOUNGE OCEAN(T棟48階):東京湾を見下ろすバー設置のラウンジ
・SUNNY LOUNGE(T棟48階):「天空のプライネートビーチ」をイメージしたラウンジ
・NIJI SUITE(T棟48階):東京都心の夜景を愉しめるゲストルーム
・NAGOMI SUITE(T棟48階):日本らしい和のテイストのゲストルーム

基本情報

管理費
27,900円
修繕積立金
13,560円
修繕積立基金
-
間取り / 詳細
2LDK
向き
専有面積
71.01㎡
バルコニー面積
18.60㎡
その他面積
-
-
-
所在階 / 階建て
47階 / 50階建 地下1階
建物構造
鉄筋コンクリート(一部鉄筋コンクリート)
築年月
2025年10月(新築)
種別
新築マンション
土地権利
所有権
土地
(敷金 / 保証金)
- / -
国土法届出要否
不要
接道状況
-
用途地域
商業
地勢
-
都市計画
-
現況
完成済み
引渡し
相談
取引態様
仲介
棟総戸数
-
管理形態
管理会社に全部委託
管理会社 /
管理組合有無
三井不動産レジデンシャルサービス株式会社 / 有
その他条件
インターネット使用料他月:3,350円
取引条件の
有効期限
2026年02月10日

設備条件

設備条件
  • ペット相談 / ペット飼育可 / 楽器相談 / キッズルーム / 海が近い / 室内洗濯機置場 / フローリング / バルコニー / 都市ガス / 公営水道 / 公共下水 / 24時間換気システム / エレベーター / 電気有 / コインランドリー / ガスコンロ / コンロ2口以上 / カウンターキッチン / ディスポーザー / コンロ3口 / バス・トイレ別 / 浴室乾燥機 / ウォークインクロゼット / CS / BS / オートロック / TVモニタ付インターホン / 宅配ボックス / 24時間ゴミ出し可 / コンシェルジュサービス
設備(その他)
    -

その他

物件番号
98838816
管理コード
-
建築確認番号
-
情報更新日
2026年02月02日
次回更新予定日
2026年02月10日
取扱会社
  • 株式会社FLAGSHIPS
  • 東京都港区六本木7丁目12-2 SPACES ROPPONGI
  • TEL:03-6871-7808
  • 東京都知事 (1) 第108778号

支払いシミュレーション

月々の支払額
9.6
購入希望物件価格
万円
頭金
万円
金利
%
返済額(ボーナス1回分)
万円
返済期間

※ボーナスは自動で年2回分で計算されます。

近隣の物件

  1. Park Village A棟 2階

    中央区晴海5丁目

    3LDK (92.62㎡)

    22,000万円

  2. Sea Village E棟 11階

    中央区晴海5丁目

    4LDK (105.34㎡)

    25,980万円

  3. Park Village B棟 15階

    中央区晴海5丁目

    2LDK (70.81㎡)

    14,990万円

  4. SKY DUO PARK VILLAGE T棟 35階

    中央区晴海5丁目

    3SLDK (78.82㎡)

    23,800万円

SKY DUO PARK VILLAGE T棟  47階

SKY DUO PARK VILLAGE T棟 47階

21,800万円

27,900円

2LDK(71.01㎡)

お気軽にお問い合わせください

無料お問い合わせ

株式会社FLAGSHIPS

03-6871-7808

10:00~18:00

(休:水曜日・日曜・祝日)

トップへ戻る