Sun Village T棟 39階

19,800万円

東京都中央区晴海5丁目5-7

都営大江戸線「勝どき」駅徒歩18分

価格
19,800万円
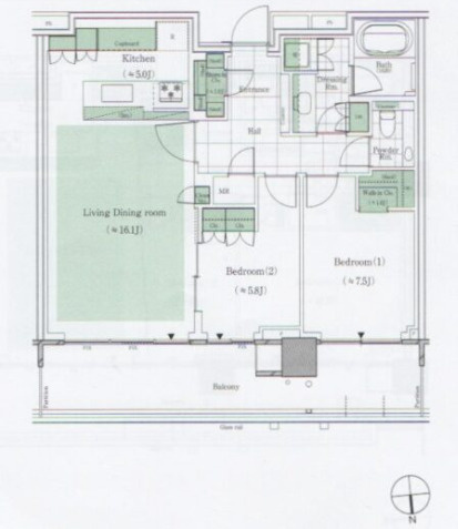
間取り
3LDK
向き
-
所在地
東京都中央区晴海5丁目5-7
交通

都営大江戸線勝どき」駅 徒歩18分

専有面積
70.34㎡
築年月
2025年10月(新築)

物件の特徴

  • バストイレ別

  • 室内洗濯機置場

  • TVモニタ付きインターホン

  • カウンターキッチン

  • 浴室乾燥機

  • オートロック

  • エレベーター

セールスポイント

半永続的なオーシャンビューが確保された人気の高いSun Villageの西側住戸になります。東京タワーやレインボーブリッジも望め、港区エリアの煌びやかな夜景も愉しめる39階の住戸です。
70.34㎡の3LDKの整形の間取りでリビングダイニングキッチンは15帖以上の広さがあります。

基本情報

管理費
27,150円
修繕積立金
13,710円
修繕積立基金
-
間取り / 詳細
3LDK
向き
-
専有面積
70.34㎡
バルコニー面積
17.02㎡
その他面積
-
-
-
所在階 / 階建て
39階 / 50階建 地下1階
建物構造
鉄筋コンクリート
築年月
2025年10月(新築)
種別
新築マンション
駐車場 /
月額料金
空無 -
土地権利
所有権
土地
(敷金 / 保証金)
- / -
国土法届出要否
不要
接道状況
-
用途地域
商業
地勢
-
都市計画
-
現況
完成済み
引渡し
相談
取引態様
売主
棟総戸数
-
管理形態
管理会社に全部委託
管理会社 /
管理組合有無
- / 有
その他条件
インターネット使用料,HARUMI FLAG CLUB会費,自治会費等月:3,350円
取引条件の
有効期限
2026年03月09日

設備条件

設備条件
  • ペット相談 / ペット飼育可 / 楽器相談 / キッズルーム / 室内洗濯機置場 / フローリング / バルコニー / 都市ガス / 公営水道 / 公共下水 / 24時間換気システム / エレベーター / 電気有 / コインランドリー / カウンターキッチン / ディスポーザー / オープンキッチン / バス・トイレ別 / 浴室乾燥機 / ウォークインクロゼット / オートロック / TVモニタ付インターホン / 宅配ボックス / 24時間ゴミ出し可 / コンシェルジュサービス
設備(その他)
    -

その他

物件番号
102016952
管理コード
-
建築確認番号
-
情報更新日
2026年03月05日
次回更新予定日
2026年03月09日
取扱会社
  • 株式会社FLAGSHIPS
  • 東京都港区六本木7丁目12-2 SPACES ROPPONGI
  • TEL:03-6871-7808
  • 東京都知事 (1) 第108778号
備考
晴海フラッグは官民一体となって開発された東京都心に位置する新たな街です。三方を海に囲まれ、東京に住みながら、東京にいることを忘れてしまうアーバンリゾートライフを堪能できます。
晴海フラッグ内には商業施設、公園、学校、保育施設と多世代、多様な方々にとって便利な施設が揃います。
新たな交通機能として期待される東京BRT(バス高速輸送システム)、虎ノ門までダイレクトアクセス可能な環状二号線も整備され、東京駅まで約3.2km、銀座や新橋へも2.5kmと通勤やお買い物にも便利なロケーションです。
また、駐車場や電線網は地下化され、歩道・自転車・車道が分離された安全性を兼ね備えた次世代の街で、空地率約50.3%の開放感が確保されたランドスケープには公園の他、3,900本にも及ぶ四季折々の中高木が街のいたるところに植樹され、森の中に住まうような安らぎを与えます。

【Sun Village 共用施設一覧】
BOARD ROOM(A棟1階):多目的に利用できる会議室
MORI SUITE 51(B棟1階):ビューバスを備えた33㎡のゲストルーム
KOKAGE SUITE(B棟1階):安らぎを感じる50㎡のゲストルーム
SPORTS BAR(B棟1階):ゴルフシミュレーター、ビリヤードを備えたカフェバー
PARTY ROOM TERRACE 51(B棟14階):キッチン付きのパーティールーム
IRORI SUITE 53(C棟1階):囲炉裏風のテーブルを設えたゲストルーム
OPEN DINING(C棟1階):中庭に面したキッチンスタジオ
THEATER ROOM(D棟1階):ピアノも設置された防音機能付きのシアタールーム
CAFE ROUNGE(F棟1階):カフェを設けたラウンジ
COMMUNITY ROOM(T棟1階):大人数でのミーティングも可能なゆとりのスペース
TOBACCO SPOT(T棟1階):喫煙室
KODOMO PLAZA(T棟2階):大人もリラックスして歓談できる小上がりのあるキッズルーム
SKY ROUNGE URBAN(T棟48階):アルコール提供のバーを設けたビューラウンジ
SHIZUKU SUITE(T棟48階):都心の夜景を一望できるビューバスのあるゲストルーム
IKOI SUITE 55(T棟48階):アイランドキッチン付きの広々としたダイニングが確保されたゲストルーム

支払いシミュレーション

月々の支払額
購入希望物件価格
万円
頭金
万円
金利
%
返済額(ボーナス1回分)
万円
返済期間

※ボーナスは自動で年2回分で計算されます。

近隣の物件

  1. SKY DUO SUN VILLAGE T棟  34階

    中央区晴海5丁目

    3LDK (70.34㎡)

    18,800万円

  2. SKY DUO PARK VILLAGE T棟  33階

    中央区晴海5丁目

    3LDK (71.01㎡)

    17,300万円

  3. SKY DUO SUN VILLAGE T棟  47階

    中央区晴海5丁目

    3LDK (70.34㎡)

    18,980万円

  4. SKY DUO PARK VILLAGE T棟 7階

    中央区晴海5丁目

    3LDK (74.33㎡)

    14,980万円

よく見られている物件

  1. SKY DUO PARK VILLAGE T棟 50階

    中央区晴海5丁目

    2LDK (82.31㎡)

    32,200万円

  2. Sea Village E棟 11階

    中央区晴海5丁目

    4LDK (105.34㎡)

    25,980万円

  3. SKY DUO SUN VILLAGE T棟  34階

    中央区晴海5丁目

    3LDK (70.34㎡)

    18,800万円

  4. SKY DUO SUN VILLAGE T棟  47階

    中央区晴海5丁目

    3LDK (70.34㎡)

    18,980万円

Sun Village T棟 39階

Sun Village T棟 39階

19,800万円

27,150円

3LDK(70.34㎡)

お気軽にお問い合わせください

無料お問い合わせ

株式会社FLAGSHIPS

03-6871-7808

10:00~18:00

(休:水曜日・日曜・祝日)

トップへ戻る