16件(会員物件 5件)
-
ペット可
新築
2億500万円
3月11日 値下げ
18階 / 83.20㎡ / 3SLDK /新築 /50階建
- ペット飼育可
- ペット相談
- エレベーター
- ディスポーザー
- 24時間ゴミ出し可
- ウォークインクロゼット
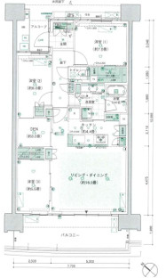
Sky Duoの中でも特に人気の高い、南向きのワイドスパンの83.20㎡の3LDKの整形の間取りです。全居室バルコニーに面しており、どの部屋にいてもオーシャンビューと明るい日照を享受できる住戸です。リビングダイニングキッチンは17.9帖以上のゆとりの広さがあります。シューズインクローゼット、ストレージ、カップボードに加えて、各部屋に収納スペースが豊富にございます。
-
ペット可
1億4,990万円
15階 / 70.81㎡ / 2LDK /築2年 /18階建
- ペット飼育可
- ペット相談
- エレベーター
- ディスポーザー
- 24時間ゴミ出し可
- 床暖房
海に面した眺望が強みの住戸です。70.31㎡のゆとりのある2LDKの整形の間取りでリビングダイニングキッチンは約14帖の広さがあります。各居室にウォークインクローゼットを含む収納を備えております。
独立型のキッチンには浄水器、食洗器、ディスポーザー、カップボードを備えます。
-
新築
3億3,000万円
12月22日 値下げ
42階 / 85.83㎡ / 2LDK /新築 /50階建
- ペット相談
- エレベーター
- ディスポーザー
- 24時間ゴミ出し可
- バス・トイレ別
- 室内洗濯機置場
東京湾&レインボーブリッジビュー
希少な高層階東南角部屋になります。 -
ペット可
2億4,880万円
3月26日 値下げ
11階 / 105.34㎡ / 4LDK /築2年 /18階建
- ペット飼育可
- ペット相談
- エレベーター
- ディスポーザー
- 24時間ゴミ出し可
- 床暖房
半永続的な眺望が確保されたオーシャンビューの住戸です。105.34㎡のゆとりのある4LDKの整形の間取りでリビングダイニングキッチンは19帖以上の広さがあります。各居室にウォークインクローゼットを含む収納を備え、納戸スペースも別途用意されています。
キッチンにはカップボード、ビルトイン食洗機、ディスポーザー、浄水器が設置されています。 -
ペット可
新築
3億2,200万円
3月6日 値下げ
50階 / 82.31㎡ / 2LDK /新築 /50階建
- ペット飼育可
- ペット相談
- エレベーター
- ディスポーザー
- 24時間ゴミ出し可
- バス・トイレ別
50階,最上階のプレミアムフロアです。全室バルコニーに面していいます。
82.31㎡の開放感のある2LDKの整形の間取りで20.3帖の広々としたリビングダイニングキッチンになっております。
また天井高が3mあり開放的な空間になっています。
全室ビルトインエアコン付きです。 -
ペット可
1億9,980万円
3月26日 値下げ
2階 / 92.62㎡ / 3LDK /築2年 /14階建
- ペット飼育可
- ペット相談
- エレベーター
- ディスポーザー
- 24時間ゴミ出し可
- 床暖房
半永続的な眺望が確保された、レインボーブリッジ・オーシャンビューの住戸です。92.62㎡のゆとりのある3LDKの整形の間取りでリビングダイニングキッチンは16帖以上の広さがあります。各居室に収納(1部屋はウォークインクローゼット)を備え、納戸スペースも別途用意されています。
キッチンにはカップボード、ビルトイン食洗機、ディスポーザー、浄水器が設置されています。 -
ペット可
1億8,500万円
8階 / 90.49㎡ / 3LDK /築2年 /16階建
- ペット飼育可
- ペット相談
- エレベーター
- ディスポーザー
- 24時間ゴミ出し可
- 床暖房
バルコニーからオーシャンビュー、レインボーブリッジを望む90.49㎡の3LDKの住戸です。3方角住戸であることから、開放感があり、室内の通風、日照も良好です。また、バルコニーも34.88㎡のゆとりのある広さがあります。ウォークインクローゼットを含む、収納スペースも豊富に用意されています。
-
ペット可
新築
2億2,800万円
33階 / 73.53㎡ / 3LDK /新築 /50階建
- ペット飼育可
- ペット相談
- エレベーター
- ディスポーザー
- 24時間ゴミ出し可
- ウォークインクロゼット
半永続的なオーシャンビューが確保された人気の高いSun Villageの西側住戸になります。東京タワーやレインボーブリッジも望め、港区エリアの煌びやかな夜景も愉しめる33階の住戸です。
73.53㎡の3LDKの整形の間取りでリビングダイニングキッチンは14帖以上の広さがあります。バスルームやトイレを含め、新築未入居ですので、現況のままご利用可能です。 -
ペット可
新築
1億8,800万円
34階 / 70.34㎡ / 3LDK /新築 /50階建
- ペット飼育可
- ペット相談
- エレベーター
- ディスポーザー
- 24時間ゴミ出し可
- 床暖房
半永続的にオーシャンビューが確保された西側の住戸です。レインボーブリッジ、東京タワー、富士山(天候による)を望み、都心ならではの煌びやかな眺望が広がります。新築未入居ですので、バスルームやトイレを含めて、水回りスペースのご利用もございません。壁・天井のクロスアップグレード、エントランスにはミラーを新設しています。
70.34㎡の3LDKの間取り、リビングダイニングには床暖房が設置されています。 -
ペット可
新築
1億6,800万円
33階 / 71.01㎡ / 3LDK /新築 /50階建
- ペット飼育可
- ペット相談
- エレベーター
- ディスポーザー
- 24時間ゴミ出し可
- 床暖房
豊洲方面の眺望が驚くほど良好で、広々バルコニーとリビングからのオーシャンビューで魅了されることも多いと感じます。キッチンや洗面など細かい収納に気を使い、「痒い所に手が届く」間取りとはこのことでしょう。また、新築未入居ですので、バスルームやトイレを含めて、水回りスペースのご利用もございません。
71.01㎡の3LDKの間取り、リビングダイニングには床暖房が設置されています。 -
ペット可
新築
1億9,800万円
26階 / 75.25㎡ / 3SLDK /新築 /50階建
- ペット飼育可
- ペット相談
- エレベーター
- ディスポーザー
- 24時間ゴミ出し可
- 海が近い
75.25㎡の3LDK+WIC+SICの間取りでリビングダイニングキッチンは18帖以上の広さがあります。西側のお部屋ですので、目の前に半永続的にオーシャンビューとレインボーブリッジビューのSky Duo特有の眺望が広がります。キッチンにはカップボード、ビルトイン食洗機、ディスポーザー、浄水器が設置されています。空室ですので、お客様のご都合に合わせてご内覧可能です。
-
ペット可
新築
1億8,800万円
3月26日 値下げ
39階 / 70.34㎡ / 3LDK /新築 /50階建
- ペット飼育可
- ペット相談
- エレベーター
- ディスポーザー
- 24時間ゴミ出し可
- ウォークインクロゼット
半永続的なオーシャンビューが確保された人気の高いSun Villageの西側住戸になります。東京タワーやレインボーブリッジも望め、港区エリアの煌びやかな夜景も愉しめる39階の住戸です。
70.34㎡の3LDKの整形の間取りでリビングダイニングキッチンは15帖以上の広さがあります。 -
4億8,800万円
47階 / 95.56㎡ / 1SLDK /築1年未満 /50階建
- ペット相談
- エレベーター
- 24時間ゴミ出し可
- リノベーション済
- ウォークインクロゼット
- バス・トイレ別
オーシャンビューに加えて、東京タワー・レインボーブリッジ・富士山(※天気による)を一望できる眺望良好な南西角住戸です。特に東京タワーは足元から望むことができる、SKY DUOの中でも非常に希少なロケーションとなります。リビングダイニングキッチンは開放感があり、ベッドルームも含めて、全室バルコニーに面していますので、明るく、通風も良好です。
-
ペット可
新築
3億500万円
48階 / 77.79㎡ / 3LDK /新築 /50階建
- ペット飼育可
- ペット相談
- エレベーター
- ディスポーザー
- 24時間ゴミ出し可
- 床暖房
◆築後未入居物件です。
◆天井高2900mmの解放感あるお部屋です。
◆南向きのため、レインボーブリッジを望む眺望です。
◆当社にて鍵をお預かりしておりますので即日内覧可能です。
◆SunT棟には48階にスカイラウンジがあり、
エレベーターを降りずに利用することが可能です。
◆床暖房(LD部分)食洗機、ディスポーザー、浄水器あり。
◆ミストサウナ、浴室乾燥機(バスルーム)
南東向き住戸・3LDK・83.39㎡・バルコニーよりお台場のレインボー花火、鑑賞可能!
半永続的な眺望が確保された、レインボーブリッジ・オーシャンビューの住戸です。83.39㎡のゆとりのある3LDKの整形の間取りでリビングダイニングキッチンは18.8帖の広さがあります。各居室に収納(1部屋はウォークインクローゼット)を備えています。